preloader

SE VENDE CASA DE PUEBLO EN EL CENTRO DE BURJASSOT. 235 M2. 295.000€.

calle obispo muñoz, Burjassot, 46100, Valencia, España

octubre 17, 2024

Descripción de propiedad
Reservada €295000

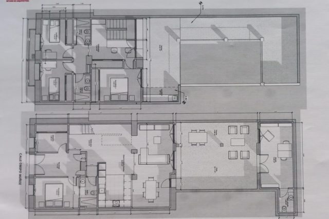
En la C/Obispo Muñoz ,en pleno centro histórico  de Burjassot, se vende amplia Casa, con una fachada de más de 7 m2. La superficie solar es de 163 m2. Y la construida, en dos plantas, es de 235 m2.

Actualmente en la planta baja hay dos habitaciones con vistas a la calle y 3 habitaciones-estancias interiores. El suelo es de origen y en el comedor es de mosaico.

La entrada señorial conduce a salón comedor con acceso a cocina y salida a patio- terraza,chapada con azulejos, de unos 20 m2. Tiene dos cuartos y acceso a las dos terrazas superiores.

La planta baja se completa con un cuarto de baño y escalera interior de acceso a la planta superior.

Esta planta se distribuye en recibidor, aseo, salón y habitación principal con armario empotrado y vista a la calle, al igual que otra habitación también grande  y que tiene balcón.

También hay un cuarto y un distribuidor con puerta de acceso a las terrazas y a una Torreta con magníficas vistas y que puede ser utilizada como estudio, despacho, taller o para el uso que se prefiera.

La casa tiene muchas posibilidades, si bien necesita una reforma grande.

Se tiene Luz y Agua y se dispone de Proyecto Visado por el Colegio de Arquitectos de “Reforma Vivienda Unifamiliar entre medianeras”.

Las fotos de la publicación son antiguas. Actualmente no tiene muebles y hay una estancia apuntalada por deterioro de las vigas de madera.

La situación de la Casa está cerca de parada de metro, zona residencial con todos los servicios: guardería, colegio, iglesia arciprestal …

P.D.,  Esta propiedad se comercializa en exclusiva. El precio no incluye lo siguiente: honorarios de la agencia inmobiliaria, ITP y otros gastos de la Compraventa (Notaria, Gestoría y registro)

  • Tipo

    Casa
  • Construida

    NA
  • Área

    235/m² - Sqft
  • Tamaño del lote

    NA
Propiedades relacionadas

285/m² - Sqft

€400000

Encarna
  • Email: encarna@gvconsultoresinmobiliarios.es
View Profile
User Login

Lost your password?
Cart 0
Abrir chat
Hola 👋
¿En qué podemos ayudarte?